From intake through flocculation, sedimentation, filtration and disinfection, water plants monitor and control a number of water quality parameters before going to distribution. Increasingly, plant managers are recognizing the value of a final check on those parameters. A mid-size water system in the southeast was looking to pull together multiple measurements in a single panel. After reviewing off-the-shelf solutions, they realized there was nothing that met their requirements.
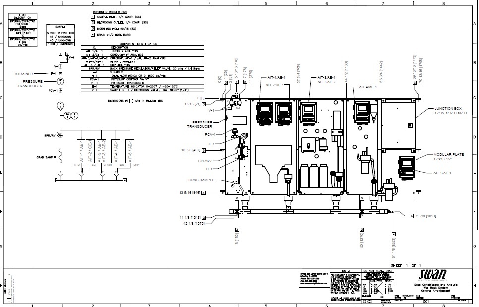
The sales and engineering team from Swan Analytical USA met with key decision makers at the water system to review the desired parameters as well as the available space at the plant. The result was a custom panel that pulled together turbidity, pH, ORP, conductivity, nitrate, dissolved oxygen, and free, total and residual chlorine. In addition, the rack included sample conditioning, valves for blow down, and a single NEMA 4 junction box for all outputs for the various signals and incoming power for all instruments with only a single power drop.
The sample conditioning unit provided a 20 psi backpressure regulator to ensure adequate flow and acceptable pressure for each of the analyzers. A visual flow indicator and temperature gauge provided additional confidence that the sample conditions were optimized for reliable panel operation. A simple 100 micron filter ensured protection for the system in the event of outages that could introduce solids and sediment. A backpressure transducer provided proof of flow downstream of the filter to protect against loss of flow and alert in the event filter became plugged.
The operators were so pleased with the result that they immediately placed an order for a second panel, with plans for added panels for the remaining three plants in the system. Flexibility in the design allowed them to eliminate the dissolved oxygen instrumentation that was not needed at the second plant, saving money as well as simplifying the system.
Swan can also expand the panel to include phosphate, chloride and other parameters.
















